Beschrijving
Dit representatieve bedrijfsgebouw met kantoren is 5 autominuten gelegen van de rijksweg A2 en is onderdeel van industrieterrein De Ooijk.
Dagelijks passeren er op de belangrijkste noord-zuid (A2) verbinding meer dan 90.000 voertuigen. De gemeente Zaltbommel heeft destijds bij de ontwikkeling hoge eisen gesteld aan de inrichting van het kantorenpark.
Door de vrijwel directe ligging van aan de A2 is het geheel zeer goed bereikbaar met eigen vervoer. Daar komt bij dat de verbrede brug over de Waal en de verbreding van de A2 de bereikbaarheid van Zaltbommel sterk hebben verbeterd. Even ten noorden ligt de A15. Ook ligt het gebouw op loopafstand van het NS-station en bushalte. Vanaf station is er een directe treinverbinding met Den Bosch, Eindhoven en Utrecht.
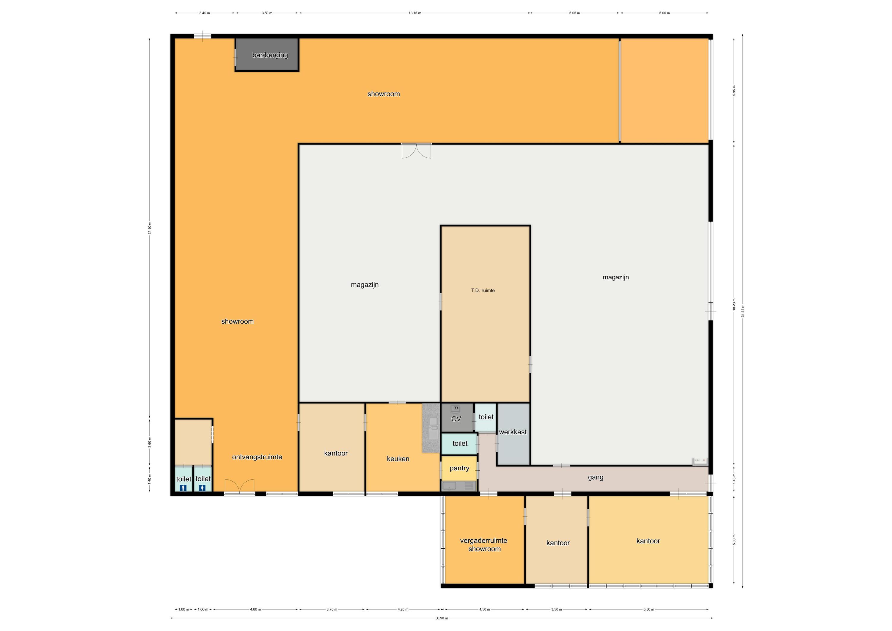
Het gebouw heeft een vloeroppervlak ter grootte van in totaal circa 860 m². De kantoorruimte heeft een oppervlakte van 90 m². Alles is op de begane vloer gelegen.
Bij het gebouw behoren eigen parkeerplaatsen.
Het gebouw bestaat uit één bouwlaag die logische en effectieve eenheid vormen.
Opleveringsniveau / voorzieningen:
Het gebouw beschikt onder andere over de navolgende voorzieningen:
• standaard systeemplafond met verlichtingsarmaturen;
• centrale verwarming door middel van radiatoren;
• airco;
• (gemeenschappelijke) toiletruimten;
• kabelgoten voorzien van WCD’s en elektrabekabeling, bestemd voor de aanleg van data- en telefoonbekabeling;
• intercom.
Verkoop en aankoop proces:
– het pand wordt verkocht op ‘as is where is’-basis;
– het pand wordt verkocht eventueel (in overleg) met bestaand interieur;
– het pand wordt verkocht in een open verkoopproces. Partijen kunnen een indicatief aanbod doen;
– een gestandaardiseerde verkoop- en aankoopovereenkomst (NVM) zal worden gebruikt voor de verkoop en de overdracht van het eigendom;
– een aanbetaling of een bankgarantie van tien procent (10%) van de aankoopprijs moet door de koper worden verstrekt in de periode tussen de ondertekening van de overeenkomst en de levering bij de notaris.
Kenmerken
Overdracht
| Status | Verkocht |
| Aanvaarding | In overleg |
Adres
| Straatnaam | Dwarsweg |
| Huisnummer | 22 |
| Postcode | 5301 KT |
| Woonplaats | Zaltbommel |
| Land | Nederland |
Maten en ligging
| Liggingen | Bedrijventerrein |
| Perceel | 1.487 m2 |
| Bedrijfsruimte bedrijfshal | 860 m2 |
| Bedrijfsruimte kantoorruimte | 90 m2 |
| Bedrijfsruimte terrein | 623 m2 |
Overig
| Bouwvorm | Bestaande bouw |
Bouwjaar
| Bouwjaar | 1978 |
| Bouwjaar omschrijving | 1978-1994 |
Onderhoud
| Binnen | Goed |
| Buiten | Goed |
Downloads
Liggingen
Voorzieningen
| Bereikbaarheid bushalte | Op 500m tot 1000m |
| Bereikbaarheid ns station | Op minder dan 500m |
| Bereikbaarheid snelwegafrit | Op 1000m tot 1500m |
Interesse? Laat het ons weten
Neem contact op
Moolenaar Makelaardij staat bekend om de persoonlijke benadering en duidelijke afspraken die we met onze cliënten maken. We zijn niet snel tevreden en gaan tot het uiterste om optimaal aan uw woonwensen en -mogelijkheden te voldoen.