Baronieweg 16
5321 JW Hedel
Verkocht
362 m2 woonoppervlakte
2.000 m2 perceel
6 kamers
1999
Energielabel
BBeschrijving
Ontdek het summum van exclusief wonen in dit prachtige landhuis op een royaal perceel van 2.000 m².
Vanaf het moment dat u de statige oprijlaan betreedt, omgeven door weelderig groen, ervaart u de grandeur van dit unieke vastgoed. De elektrisch bedienbare toegangspoort met videocall biedt u niet alleen gemak, maar ook een gevoel van veiligheid en privacy.
Het luxe landhuis zelf is een verfijnde combinatie van comfort en stijl. Een personenlift verzekert u van moeiteloze toegang tot alle niveaus. De royale garage met plaats voor 4 auto’s biedt niet alleen ruimte, maar ook het gemak van directe toegang tot uw woning. De landelijke keuken is een droom voor elke kookliefhebber, terwijl de salon en living, verrijkt met een royale serre, een perfecte setting creëren voor ontspanning en entertainment. Met in totaal 5 slaapkamers en 2 luxueuze badkamers biedt dit landhuis ruimte en comfort voor het hele gezin. Ervaar de perfecte harmonie tussen luxe en landelijk wonen in dit exclusieve landhuis, waar elk detail met zorg is ontworpen. Bovendien is werken aan huis een genot, dankzij de mogelijkheid tot het inrichten van een thuiskantoor, hobbyruimte of praktijk. Welkom thuis in uw eigen droomhuis!
De woning is gebouwd in 2000 en heeft een woonoppervlakte van maar liefst 362 m². Het landhuis heeft een inhoud van ca. 1.769 m³ en het geheel is gelegen op een riant perceel van 2.000 m².
De achtertuin is aangelegd onder architectuur met oog voor detail en is een waar pronkstuk. De zonnige ligging op het zuiden zorgt voor een aangename sfeer. Langs de oprijlaan staan rijen leibomen, terwijl zorgvuldig geselecteerde heesters en bloemen de borders en het ronde perk in de keerlus sieren. Bewandel de kronkelende wandelpaden, ontspan onder de romantische pergola of geniet van de natuurlijke schoonheid onder de druivenranken. Zodra de avond valt, zorgt sfeervolle verlichting voor een betoverende ambiance. Voor de beregening van de gehele tuin is er een tuinsproei-installatie met grondwaterpomp.
Deze bedrijfswoning is gelegen aan het bedrijventerrein ‘De Kampen’ in het landelijke dorp Hedel. Alle faciliteiten op het gebied van winkels, horeca en openbaar vervoer is slechts op enkele autominuten bereikbaar. De bourgondische binnenstad van ’s-Hertogenbosch en gezellige vestingstadje van Zaltbommel zijn beide binnen 10 autominuten bereikbaar.
Indeling woonhuis:
Begane grond: de imposante entree met dubbele voordeuren geeft toegang tot de royale ontvangsthal met toiletruimte, meterkast en personenlift. De prachtige compositie van het glas-in-lood venster in de entree zorgt voor een fraaie lichtinval. De open houten trap slingert elegant omhoog tot aan de ruime balustrade van de vide en de overloop, waardoor een indrukwekkende overgang ontstaat tussen de verschillende niveaus van het huis. De trap aan de dichte zijde is subtiel verlicht. Vanuit de hal zijn de woonkamer en keuken bereikbaar.
De royale woonkamer met serre, salon en living zorgen dankzij de overvloedige aanwezigheid van openslaande deuren voor veel licht en creëren een naadloze connectie tussen binnen en buiten. De serre geeft direct toegang tot het terras en biedt een fraai uitzicht op de weelderige achtertuin. De woonkamer staat in half open verbinding met de keuken voorzien van een indrukwekkend fornuis, fraai betegelde schouw en ruime keukenkasten met inbouwapparatuur.
Stap vanuit de keuken in een uitzonderlijk ruime inloop provisiekast met directe toegang tot de garage. Aangrenzend is er een ruime bijkeuken met aansluitingen voor het witgoed. Vanuit de bijkeuken zijn de kelder en garage te bereiken. Voor ultiem gemak is er zelfs een personenlift die u naar de kelder en overige verdiepingen brengt. Deze kelder biedt niet alleen extra ruimte, maar kan ook dienen als een prachtige wijnopslag.
Garage:
De dubbele garage beschikt over 2 elektrische brandwerende sectionaaldeuren, is verwarmd en biedt ruimte aan maar liefst 4 grote personenwagens. Bewegings- en lichtsensoren reguleren de buitenverlichting in de voortuin en zijtuinen. Vanuit de garage heeft u toegang tot een inpandige bergruimte waar 2 industriële cascade geschakelde CV-ketels en de techniek van het Domotica systeem zijn geplaatst.
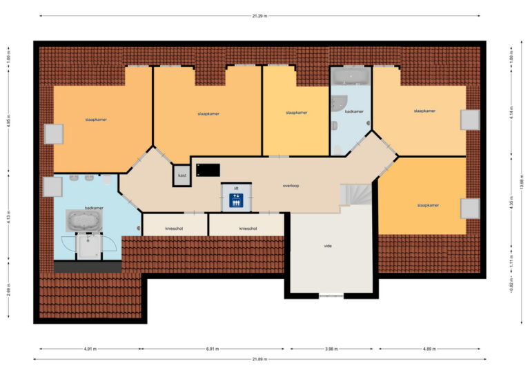
Eerste verdieping: de overloop met indrukwekkende vide geeft toegang tot 2 zeer luxe badkamers, 5 slaapkamers die allemaal voorzien zijn van airconditioning en drie muurkasten, waaronder een ruime luxe inloopkast.
De badkamer bij de master bedroom biedt een ware wellness-ervaring met een jacuzzi, regendouche, 2 wastafels, design radiator, toilet en urinoir. De 2e badkamer straalt luxe uit met een whirlpool, douchecabine met regendouche, wastafel, toilet en urinoir.
Tweede verdieping: een vlizotrap geeft toegang naar de open zolderetage.
Kelder: deze veelzijdige ruimte is bereikbaar via zowel lift als trap en heeft een oppervlakte van ca. 24 m².
Bijzonderheden & pluspunten:
• Personenlift:
De woning is voorzien van een hoogwaardige personenlift, waardoor toegang tot alle niveaus eenvoudig en comfortabel is.
• Airconditioning installatie:
Geniet van een aangename atmosfeer het hele jaar door dankzij de geïntegreerde airconditioning installatie.
• Automatische ventilatie:
Het huis beschikt over een geavanceerd automatisch ventilatiesysteem dat zorgt voor een continue frisse luchtstroom.
• Vloerkoeling in de woonkamer (top-koeling):
Ervaar optimaal comfort met vloerkoeling in de woonkamer, een moderne en efficiënte manier van verkoeling.
• Domotica systeem (smarthome):
De woning is uitgerust met een geavanceerd Domotica systeem, waardoor u controle heeft over diverse aspecten van het huis met behulp van moderne technologie.
• Alarmsysteem met meldkamerconnectie:
Uw veiligheid staat voorop met het geïntegreerde alarmsysteem dat verbonden is met een meldkamer, waardoor snelle respons bij eventuele noodsituaties mogelijk is.
• Automatische rolscreens reagerend op licht- en zonintensiteit:
De woning is voorzien van slimme rolscreens die automatisch reageren op veranderende licht- en zonintensiteit, waardoor het binnenklimaat optimaal wordt gereguleerd.
• Op korte afstand van ‘s-Hertogenbosch en Zaltbommel:
Gunstig gelegen nabij de steden ‘s-Hertogenbosch en Zaltbommel, waardoor u profiteert van alle voorzieningen en culturele aspecten die deze steden te bieden hebben.
• Goede busverbindingen:
Gemakkelijke toegang tot het openbaar vervoer met goede busverbindingen in de nabije omgeving.
• Rijksweg A2 op circa 5 minuten rijden:
Uitstekende bereikbaarheid met de nabijheid van de Rijksweg A2, waardoor u snel verbinding kunt maken met andere delen van het land.
• Nabij dorpskern Hedel:
De woning bevindt zich in de buurt van de dorpskern van Hedel, waardoor u kunt genieten van een charmante woonomgeving.
• Dit landhuis bevindt zich op een bedrijventerrein:
Uniek gelegen op een bedrijventerrein, wat extra mogelijkheden en gebruiksopties kan bieden aan potentiële eigenaars.
• Architectuur:
Geïnspireerd op de rijke architectuur van de New Hamptons aan de oostkant van Amerika wordt de villa gekenmerkt door sprekende raampartijen, veel licht en karakteristieke elementen in de vorm van erkers en veranda’s. Daarnaast heeft de woning minimaal één zongerichte zijde en een riante tuin eromheen. Long Island New Hampton Style richt zich daarmee op de fijnproever, op de liefhebbers van het rijke goede leven.
Kenmerken
Overdracht
| Status | Verkocht |
| Aanvaarding | In overleg |
Adres
| Straatnaam | Baronieweg |
| Huisnummer | 16 |
| Postcode | 5321 JW |
| Woonplaats | Hedel |
| Land | Nederland |
Maten en ligging
| Liggingen | Bedrijventerrein |
| Inhoud | 1.769 m3 |
| Gebruiksoppervlakte woonfunctie | 362 m2 |
| Gebruiksoppervlakte overige functies | 121 m2 |
| Perceel oppervlakte | 2.000 m2 |
Overig
| Bouwvorm | Bestaande bouw |
Bestemming
| Huidig gebruik | Woonruimte |
| Huidige bestemming | Bedrijfswoning |
| Permanente bewoning | Ja |
| Recreatiewoning | Nee |
Bouwjaar
| Jaar omschrijving | 1999 |
| In aanbouw | Nee |
Onderhoud
| Binnen | Goed |
| Buiten | Goed |
Diversen
| Isolatievormen | Volledig geïsoleerd |
Installatie
| Soorten verwarming | CV ketel, Vloerverwarming gedeeltelijk, Gashaard |
Tuin
| Tuintypen | Tuin rondom |
| Kwaliteit | Fraai aangelegd |
Hoofdtuin
| Type | Tuin rondom |
| Achterom | Ja |
Garage
| Soorten | Aangebouwd steen, Inpandig |
| Voorzieningen | Verwarming, Elektra, Water, Elektrische deur |
| Capaciteit | 4 |
Woonhuis
| Soort woning | Landhuis |
Verdiepingen
| Aantal kamers | 6 |
| Aantal slaapkamers | 5 |
Downloads
Ligging
Voorzieningen
Bushalte
0.2 km
Tankstation
0.2 km
School
0.3 km
Supermarkt
1.2 km
Treinstation
7.5 km
Bibliotheek
7.7 km
Deze afstanden zijn berekend in vogelvlucht. De werkelijke routes en afstanden kunnen afwijken.
Interesse? Laat het ons weten
Neem contact op
Moolenaar Makelaardij staat bekend om de persoonlijke benadering en duidelijke afspraken die we met onze cliënten maken. We zijn niet snel tevreden en gaan tot het uiterste om optimaal aan uw woonwensen en -mogelijkheden te voldoen.