Secr. Janssenstraat 1
6624 AC Heerewaarden
Verkocht
75 m2 woonoppervlakte
172 m2 perceel
3 kamers
1976
Energielabel
ABeschrijving
Stijlvolle hoekwoning met energielabel A, instapklaar en tot in de puntjes verzorgd!
Op zoek naar een instapklare woning op een rustige locatie, omgeven door natuur en toch met alle voorzieningen binnen handbereik? Deze sfeervolle hoekwoning in het pittoreske Heerewaarden, nabij de Maas, is een echte parel!
Binnen word je direct verrast door de lichte en sfeervolle living met erker en de prachtige visgraatvloer, die de ruimte een stijlvolle uitstraling geeft. De open keuken is het hart van het huis – een fijne plek om te koken en te genieten.
Op de eerste verdieping bevinden zich twee ruime slaapkamers en een moderne badkamer met een strakke, luxe afwerking. Extra bergruimte vind je op de vliering én in de kelder met een stahoogte van maar liefst 1,96 m – perfect voor hobby’s of opslag.
Buiten geniet je van de fraai aangelegde achtertuin op het zuiden, voorzien van moderne terrastegels, een groen gazon, sfeervolle borders en fruitbomen. De tuin is volledig omheind, biedt volop privacy en heeft een praktische achterom.
Dankzij energielabel A, uitstekend onderhoud en een perfecte afwerking hoef je alleen nog maar je spullen uit te pakken – wonen en genieten kan hier direct beginnen!
De woning is in 1976 gebouwd en is in 2020 volledig gerenoveerd. De woonoppervlakte bedraagt incl. kelder ca. 95 m² en de inhoud is ca. 347 m³. Het geheel is gelegen op een zonnig perceel van 172 m².
Heerewaarden is een sfeervol dorp in het hart van de Bommelerwaard, prachtig gelegen aan de rivier de Maas. Hier woon je te midden van het idyllische Gelderse Rivierengebied, met volop ruimte, rust en natuur – en toch verrassend centraal in Nederland. Binnen 10 minuten zit je op de A2 en in 15 minuten op de A15, waardoor steden als ’s-Hertogenbosch, Utrecht en Nijmegen snel bereikbaar zijn. Het NS-station in Zaltbommel ligt op slechts 10 autominuten afstand. Met de trein sta je in 7 minuten op ’s-Hertogenbosch Centraal en in 36 minuten op Utrecht Centraal.
Ook het openbaar vervoer is goed geregeld: er rijdt een buslijn richting ’s-Hertogenbosch, Druten en Nijmegen. Zo combineert Heerewaarden het beste van twee werelden: dorpse rust én uitstekende bereikbaarheid.
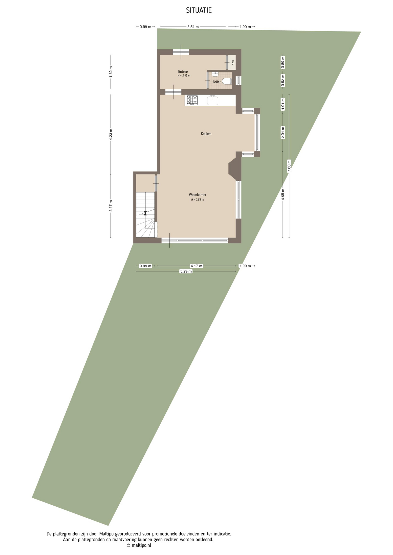
Indeling woning: via de entree kom je in de ruime, sfeervolle hal, voorzien van een garderobe, meterkast en toiletruimte. Vanuit de hal stap je direct de woonkeuken binnen, die in open verbinding staat met de lichte woonkamer. Dankzij de erker en grote raampartijen geniet je hier van een prachtige lichtinval en een ruimtelijk gevoel.
Via een portaal bereik je de verrassend ruime kelder, ideaal voor opslag, hobby’s of als wijnkelder. Een open trapopgang leidt naar de eerste verdieping, terwijl een loopdeur toegang geeft tot de zonnige achtertuin.
Eerste verdieping: de overloop biedt toegang tot twee ruime slaapkamers en de moderne badkamer. De slaapkamer aan de achterzijde is extra sfeervol dankzij het dakkapel, de houten spanten en de mooie lichtinval. De badkamer is compleet uitgerust met een stijlvol badkamermeubel met waskom, een ruime inloopdouche, wandcloset en vloerverwarming voor extra comfort.
Vliering: via een vlizoluik is de vliering bereikbaar, waar zich de CV-installatie bevindt en extra bergruimte beschikbaar is.
Kelder:
Pluspunten op een rij:
• energielabel A – duurzaam en energiezuinig;
• rustige ligging nabij de Maas;
• instapklaar en uitstekend onderhouden;
• sfeervolle living met erker en visgraatvloer;
• 2 ruime slaapkamers + moderne badkamer;
• vliering én kelder met stahoogte (1,96 m);
• verzorgde, zonnige tuin op het zuiden met achterom!
Mis deze kans niet – plan snel een bezichtiging en laat je verrassen door deze stijlvolle woning!
Kenmerken
Overdracht
| Status | Verkocht |
| Aanvaarding | In overleg |
Adres
| Straatnaam | Secr. Janssenstraat |
| Huisnummer | 1 |
| Postcode | 6624 AC |
| Woonplaats | Heerewaarden |
| Land | Nederland |
Maten en ligging
| Liggingen | Aan rustige weg, In woonwijk |
| Inhoud | 347 m3 |
| Gebruiksoppervlakte woonfunctie | 75 m2 |
| Gebruiksoppervlakte overige functies | 20 m2 |
| Perceel oppervlakte | 172 m2 |
Overig
| Bouwvorm | Bestaande bouw |
Bestemming
| Huidig gebruik | Woonruimte |
| Huidige bestemming | Woonruimte |
| Permanente bewoning | Ja |
| Recreatiewoning | Nee |
Bouwjaar
| Jaar omschrijving | 1976 |
| In aanbouw | Nee |
Onderhoud
| Binnen | Uitstekend |
| Buiten | Uitstekend |
Diversen
| Isolatievormen | Dakisolatie, Muurisolatie, Vloerisolatie, Dubbelglas, HR glas |
| Dak | Pannen |
Installatie
| Soorten verwarming | CV ketel, Vloerverwarming gedeeltelijk |
| Soorten warm water | CV ketel |
Tuin
| Tuintypen | Achtertuin, Zijtuin |
| Kwaliteit | Fraai aangelegd |
Hoofdtuin
| Type | Achtertuin |
| Achterom | Ja |
Garage
| Soorten | Geen garage |
Woonhuis
| Soort woning | Eengezinswoning |
Verdiepingen
| Aantal kamers | 3 |
| Aantal slaapkamers | 2 |
Downloads
Ligging
Voorzieningen
Bushalte
0.4 km
School
0.4 km
Tankstation
1.4 km
Bibliotheek
10.2 km
Treinstation
11.2 km
Supermarkt
16.2 km
Deze afstanden zijn berekend in vogelvlucht. De werkelijke routes en afstanden kunnen afwijken.
Interesse? Laat het ons weten
Neem contact op
Moolenaar Makelaardij staat bekend om de persoonlijke benadering en duidelijke afspraken die we met onze cliënten maken. We zijn niet snel tevreden en gaan tot het uiterste om optimaal aan uw woonwensen en -mogelijkheden te voldoen.