Kerkstraat 135
5331 CD Kerkdriel
Verkocht
160 m2 woonoppervlakte
1.105 m2 perceel
4 kamers
1944
Energielabel
A+Beschrijving
Aan Kerkstraat 135 in Kerkdriel staat deze karakteristieke vrijstaande woning, waar sfeer en modern comfort hand in hand gaan. Onlangs volledig gerenoveerd, verbouwd en verduurzaamd, met energielabel A+, is dit huis helemaal klaar voor de toekomst én voor jou. De woning beschikt over een sfeervolle living, een royale uitgebouwde woonkeuken, drie ruime slaapkamers en een stijlvolle, moderne badkamer. Het geheel is niet alleen praktisch ingedeeld, maar heeft ook een warme, luxe uitstraling. Instapklaar wonen op een ruim perceel – dat is wat dit huis uniek maakt! Welkom thuis!
Met een perceel van maar liefst 1.105 m² biedt dit huis alle mogelijkheden om te genieten van zowel binnen als buiten. De royale achtertuin biedt de perfecte basis om helemaal naar eigen smaak en wensen in te richten – creëer hier een groene oase, speelse tuin of stijlvol buitenverblijf! Daarnaast is er op de ruime oprit plek voor meerdere auto’s.
De woning is gebouwd in 1944 en heeft een woonoppervlakte van ca. 160 m². De inhoud van het pand bedraagt ca. 591 m³ en het geheel is gelegen op een perceel van 1.105 m²
De woning is gelegen op een centrale locatie in de dorpskern van Kerkdriel, op korte afstand van het gezellige Mgr. Zwijsenplein en winkelcentrum ‘Delkant’. In de direct omgeving bevindt zich o.a. een speeltuin, scholen, openbaar vervoer, overdekt zwembad, winkels, terrassen, restaurants, jachthaven en golfbaan. Het prachtige recreatiegebied ‘de Zandmeren’ is nabij gelegen en biedt een diversiteit aan watersport en evenementen. Het gemoedelijke dorp is voorzien van een compleet winkelaanbod in winkelcentrum ‘Delkant’ met o.a. 2 grote supermarkten, warme bakker, horecavoorzieningen, slagerijen, cafetaria en op loopafstand 2 basisscholen. Uitvalswegen maken de steden Den Bosch en Utrecht goed bereikbaar. Middelbare scholen bevinden zich in Den Bosch en Zaltbommel, beide plaatsen goed te bereiken per fiets en/of per bus.
Indeling woning: bij binnenkomst via de entree aan de voorzijde word je verwelkomd in een knus halletje met de meterkast. Aan de voorzijde van de woning bevindt zich de royale en lichte woonkamer, waar de sfeervolle erker zorgt voor extra charme en veel daglicht. Praktisch gemak vind je in de trapkast, terwijl de dichte trapopgang subtiel de toegang tot de bovenverdieping markeert. In het gedeelte waar vroeger de keuken was, vind je nu een moderne toiletruimte en een bijkeuken met aansluitingen voor witgoed. Achterin de woning, in het voormalige achterhuis, is een royale woonkeuken gerealiseerd. Deze prachtige ruimte is uitgerust met een strakke kastenwand en een kook- en spoeleiland dat uitnodigt tot koken en gezellig samenzijn. Dankzij de schuifpui is er een directe verbinding met het terras en de achtertuin, waar binnen en buiten naadloos in elkaar overlopen.
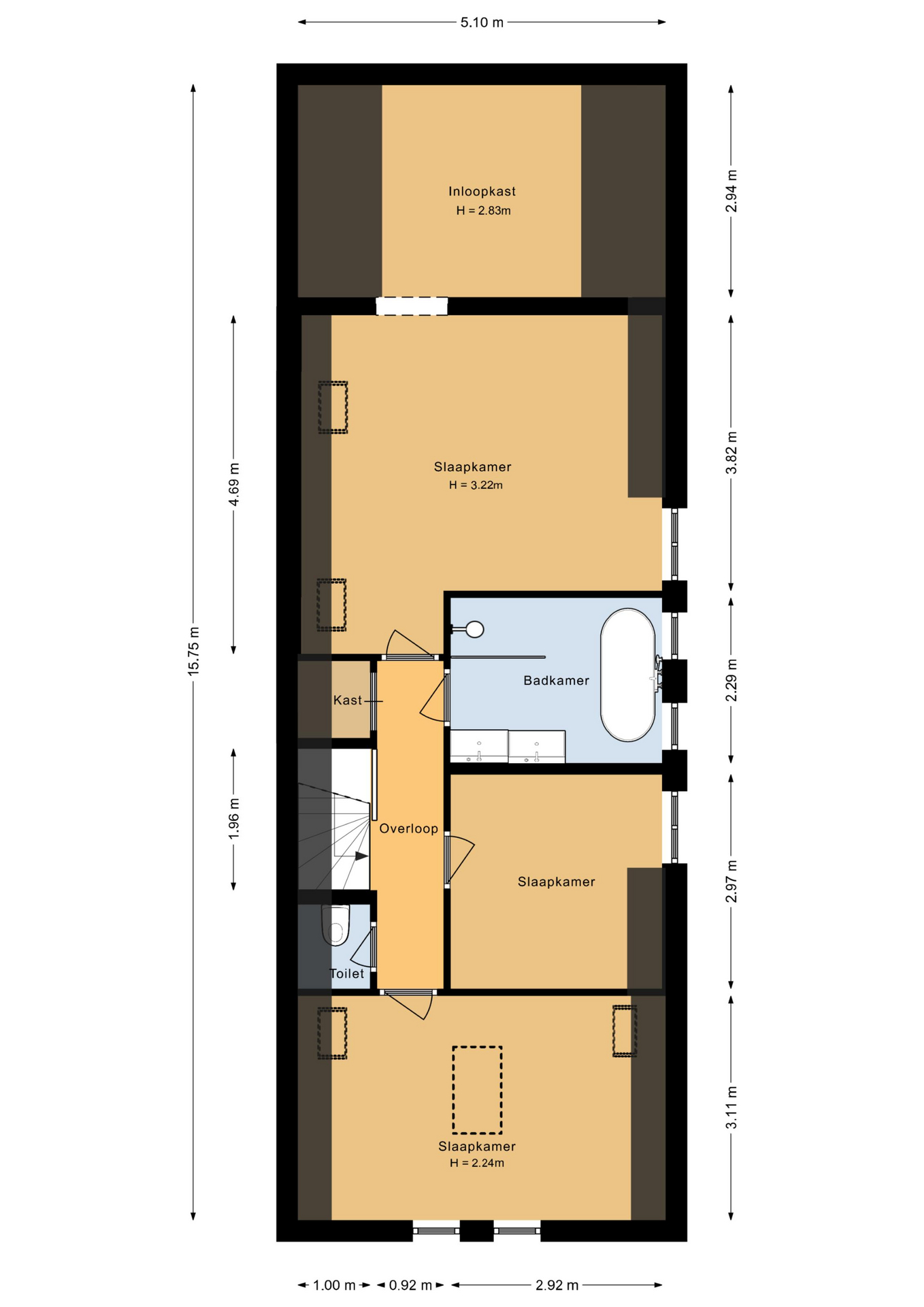
Eerste verdieping: de overloop met vaste kast en een aparte toiletruimte biedt toegang naar drie goed bemeten slaapkamers en een luxe badkamer. De badkamer is een waar pronkstuk en straalt pure elegantie uit met een vrijstaand ligbad en een stijlvolle mengkraan, een ruime inloopdouche met regendouche en een fraai badmeubel met dubbele waskommen en inbouwkranen. De masterbedroom is bijzonder royaal en voorzien van een luxe inloopkast, die ruimte biedt aan al je kleding en accessoires. Een droom van een slaapkamer waar rust en comfort samenkomen!
Zolder: vanuit de slaapkamer aan de voorzijde is via een vlizotrap de zolder bereikbaar.
Pluspunten:
• compleet gerenoveerd in 2024;
• volledig verduurzaamd, energielabel A+;
• voorzien van warmtepomp & airco;
• vloerverwarming in de gehele woning;
• kunststof kozijnen, waarvan een aantal met draaikiepramen;
• instapklaar!
Kenmerken
Overdracht
| Status | Verkocht |
| Aanvaarding | In overleg |
Adres
| Straatnaam | Kerkstraat |
| Huisnummer | 135 |
| Postcode | 5331 CD |
| Woonplaats | Kerkdriel |
| Land | Nederland |
Maten en ligging
| Liggingen | Aan drukke weg, Vrij uitzicht, Open ligging |
| Inhoud | 591 m3 |
| Gebruiksoppervlakte woonfunctie | 160 m2 |
| Gebruiksoppervlakte overige functies | 0 m2 |
| Perceel oppervlakte | 1.105 m2 |
Overig
| Bouwvorm | Bestaande bouw |
Bestemming
| Huidig gebruik | Woonruimte |
| Huidige bestemming | Woonruimte |
| Permanente bewoning | Ja |
| Recreatiewoning | Nee |
Bouwjaar
| Jaar omschrijving | 1944 |
| In aanbouw | Nee |
Onderhoud
| Binnen | Goed tot uitstekend |
| Buiten | Goed |
Diversen
| Isolatievormen | Dakisolatie, Muurisolatie, Vloerisolatie, Dubbelglas, HR glas |
| Dak | Pannen |
Installatie
| Soorten verwarming | Vloerverwarming geheel, Warmtepomp |
| Soorten warm water |
Tuin
| Tuintypen | Achtertuin, Voortuin, Zijtuin |
| Kwaliteit | Aan te leggen |
Hoofdtuin
| Type | Achtertuin |
| Achterom | Ja |
Garage
| Soorten | Geen garage |
Woonhuis
| Soort woning | Eengezinswoning |
Verdiepingen
| Aantal kamers | 4 |
| Aantal slaapkamers | 3 |
Downloads
Ligging
Voorzieningen
Tankstation
0 km
Bushalte
0.2 km
School
0.6 km
Supermarkt
1 km
Bibliotheek
16.6 km
Treinstation
9 km
Deze afstanden zijn berekend in vogelvlucht. De werkelijke routes en afstanden kunnen afwijken.
Interesse? Laat het ons weten
Neem contact op
Moolenaar Makelaardij staat bekend om de persoonlijke benadering en duidelijke afspraken die we met onze cliënten maken. We zijn niet snel tevreden en gaan tot het uiterste om optimaal aan uw woonwensen en -mogelijkheden te voldoen.