Bieskamp 25
5313 BK Nieuwaal
Verkocht
272 m2 woonoppervlakte
686 m2 perceel
6 kamers
2008
Energielabel
A+++Beschrijving
Ontsnap naar een wereld van luxe, comfort en ruimte in dit omvangrijke landhuis in het pittoreske dorpje Nieuwaal (gemeente Zaltbommel).
Het vrijstaande woonhuis aan Bieskamp 25 biedt een perfecte balans tussen luxe, ruimte en rust. De woning is fraai en landelijk gelegen, grenzend aan een wetering en weiland, en is voorzien van een prachtig aangelegde tuin met terras, siergrind, leilinden, struikgewassen en een verwarmd zwembad met vlonder. De royale oprit met carport en inpandige garage met bergzolder zorgt voor voldoende parkeer- en opbergruimte.
Binnen is de woning stijlvol afgewerkt met hoogwaardige, duurzame materialen. De landelijke woonkeuken is voorzien van een sfeervolle erker en een gezellige houtkachel. Aan de achterzijde bevindt zich de uitgebouwde living met fraaie harmonicadeur die het overdekte terras en de tuin naadloos met elkaar verbindt. Met een badkamer op zowel begane grond als de verdieping is de woning levensloopbestendig ingedeeld, wat comfortabel wonen op elke leeftijd mogelijk maakt. Op de eerste verdieping bevinden zich drie ruime slaapkamers en een handige kleedkamer. De zolder biedt veel extra ruimte en leent zich uitstekend voor het creëren van extra (slaap)kamers, waardoor de woning zich eenvoudig kan aanpassen aan uw veranderende woonwens.
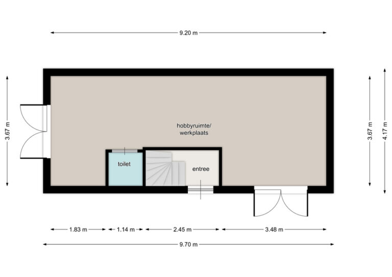
Een groot pluspunt is het bijgebouw dat is voorzien van een ruime werk- of hobbyruimte en een kantoor op de verdieping, ideaal voor wie wonen en werken wil combineren. Dit biedt volop mogelijkheden voor thuiswerken of het uitoefenen van uw hobby. Daarnaast is de woning duurzaam en voorzien van energielabel A+++, wat garant staat voor een zeer krachtig en comfortabel binnenklimaat.
Het woonhuis is gebouwd in 2007/2008 en heeft een inhoud van ca. 906 m³. De woonoppervlakte bedraagt ca. 272 m² (exclusief inpandig bereikbare garage van ca. 29 m²). Het bijgebouw meet een oppervlakte van ca. 62 m². Het geheel is gelegen op een privacy biedend perceel van 686 m².
De woning ligt langs een A-watergang aan de rand van een relatief jonge woonwijk met uitzicht over de weilanden waar in de zomer paarden en schapen grazen. Nieuwaal is een gemoedelijk dorpje gelegen op ongeveer 6 kilometer ten westen van Zaltbommel. In het dorp is een basisschool, voorschool en een cafetaria en in het nabijgelegen dorp Gameren is een grote supermarkt, slager, bakker, kinderopvang en diverse muziek- en sportverenigingen. Nieuwaal ligt aan de rivier de Waal met op loopafstand de schitterende uiterwaarden waarin het natuurgebied de Breemwaard gelegen is. Op een kleine 10 minuten rijafstand bevindt zich het gezellige vestingstadje Zaltbommel waar alle voorzieningen op het gebied van scholen, winkels, restaurants en cultuur aanwezig zijn. De snelweg A2 en het NS station zijn in 10-15 autominuten bereikbaar.
Indeling woonhuis: aan de rechterzijde van het landhuis is de entree gesitueerd. Vanuit de ruime imposante hal met vide heeft u toegang tot de aangrenzende vertrekken. Aan de voorzijde is de landelijke woonkeuken gesitueerd met diverse inbouwapparatuur en sfeervolle houtkachel. Via een stalen pui met openslaande deuren bereikt u de knusse zitkamer, die ook uitstekend kan worden gebruikt als speelkamer of studeerkamer. Vanuit deze ruimte heeft u eveneens toegang tot de badkamer. De royale woonkamer is aan de achterzijde uitgebouwd waardoor de kamer zeer ruim is met plaats voor meerdere zitjes. Dankzij de harmonica deuren aan de achterzijde is er volop lichtinval en directe verbinding met de sfeervolle achtertuin. Vanuit de hal heeft u toegang tot de complete badkamer, separate toiletruimte, praktische bijkeuken met witgoedaansluitingen en trapopgang naar de eerste verdieping. Vanuit de bijkeuken heeft u toegang tot de garage v.v. vlizotrap naar bergzolder.
Eerste verdieping: de overloop met vide geeft toegang tot 4 royale slaapkamers, waarvan 1 kamer volledig ingericht is als kleedkamer, badkamer met inloopdouche en wastafel, separate toiletruimte en vaste trap afgesloten met een deur.
Tweede verdieping: middels de vaste trap bereikt u de open zolderruimte met de mogelijkheid tot het creëren van extra slaap-/hobbykamers.
Enkele pluspunten:
• energielabel A+++;
• vrijstaand landhuis met veel ruimte en mogelijkheden;
• fraaie achtertuin met dito uitzicht;
• ruime oprit met carport en garage;
• laadstation voor elektrische auto;
• 65 zonnepanelen;
• warmtepomp;
• bijgebouw met werk-/hobbyruimte en (thuis)werkplek/ kantoor;
• 2 badkamers waarvan 1 badkamer op de begane grond;
• gehele woning is voorzien van vloerverwarming;
• voorzien van airco;
• hoogwaardig en stijlvolle afwerking.
Dit landhuis biedt een unieke kans om te wonen en werken in een groene, rustige omgeving, met alle voorzieningen binnen handbereik. Een perfecte plek voor wie op zoek is naar een stijlvol, duurzaam en comfortabel wonen!
Kenmerken
Overdracht
| Status | Verkocht |
| Aanvaarding | In overleg |
Adres
| Straatnaam | Bieskamp |
| Huisnummer | 25 |
| Postcode | 5313 BK |
| Woonplaats | Nieuwaal |
| Land | Nederland |
Maten en ligging
| Liggingen | In woonwijk, Vrij uitzicht, Landelijk gelegen |
| Inhoud | 906 m3 |
| Gebruiksoppervlakte woonfunctie | 272 m2 |
| Gebruiksoppervlakte overige functies | 29 m2 |
| Perceel oppervlakte | 686 m2 |
Overig
| Bouwvorm | Bestaande bouw |
Bestemming
| Huidig gebruik | Woonruimte |
| Huidige bestemming | Woonruimte |
| Permanente bewoning | Ja |
| Recreatiewoning | Nee |
Bouwjaar
| Jaar omschrijving | 2008 |
| In aanbouw | Nee |
Onderhoud
| Binnen | Goed tot uitstekend |
| Buiten | Goed tot uitstekend |
Diversen
| Isolatievormen | Dakisolatie, Muurisolatie, Vloerisolatie, Dubbelglas |
| Dak | Pannen |
Installatie
| Soorten verwarming | Vloerverwarming geheel, Warmtepomp, Warmte terugwininstallatie, Houtkachel |
| Soorten warm water | Elektrische boiler eigendom |
Tuin
| Tuintypen | Achtertuin, Voortuin, Zijtuin |
Hoofdtuin
| Type | Achtertuin |
| Achterom | Ja |
Garage
| Soorten | Aangebouwd steen, Inpandig, Garage met carport |
| Voorzieningen | Verwarming, Elektra, Water, Vliering, Elektrische deur |
| Capaciteit | 1 |
Woonhuis
| Soort woning | Landhuis |
Verdiepingen
| Aantal kamers | 6 |
| Aantal slaapkamers | 3 |
Downloads
Ligging
Voorzieningen
Bushalte
0.2 km
School
0.2 km
Tankstation
1.5 km
Treinstation
10.6 km
Bibliotheek
16.4 km
Supermarkt
2.3 km
Deze afstanden zijn berekend in vogelvlucht. De werkelijke routes en afstanden kunnen afwijken.
Interesse? Laat het ons weten
Neem contact op
Moolenaar Makelaardij staat bekend om de persoonlijke benadering en duidelijke afspraken die we met onze cliënten maken. We zijn niet snel tevreden en gaan tot het uiterste om optimaal aan uw woonwensen en -mogelijkheden te voldoen.