De Fazant 17
5328 GV Rossum
Verkocht
121 m2 woonoppervlakte
295 m2 perceel
4 kamers
2003
Energielabel
ABeschrijving
Op zoek naar een moderne, energiezuinige woning met veel ruimte en een prachtige tuin met vrij uitzicht? Deze ruime geschakelde tweekapper met inpandige garage heeft het allemaal. Nu met een scherpe vraagprijs!
In het mooie dorp Rossum staat aan De Fazant 17 deze fraaie woning met sfeervolle woonkamer, open keuken 3 slaapkamers (4e slaapkamer mogelijk) en nette badkamer. Aan de achterzijde bevindt zich de ruime, groene tuin voorzien van terras, gazon, een sierlijke vijver en een overvloed aan (fruit)bomen en groen. Hier kunt u in alle rust genieten van de natuur in uw eigen achtertuin.
De woning is gebouwd in 2003 en heeft een woonoppervlakte van ca. 121 m². De inhoud bedraagt ca. 440 m³ en het geheel is gelegen op een perceel van 295 m².
Rossum wordt o.a. door zijn unieke ligging aan zowel de Maas- als de Waaldijk ook wel ‘de Parel van de Bommelerwaard’ genoemd. Het gezellige dorp Rossum biedt diverse faciliteiten zoals; basisschool, kinderopvang, supermarkt, kaasboer en restaurants met terras gelegen aan de dijk. Ook heeft het dorp een bloeiend verenigingsleven. De historische binnenstad van Zaltbommel met tal van winkels en restaurants is slechts binnen ca. 10 autominuten bereikbaar. Tevens beschikt Zaltbommel over een NS-station met uitstekende verbindingen. Het centrum van het bourgondische ‘s-Hertogenbosch is via de A2 binnen ca. 15 autominuten bereikbaar.
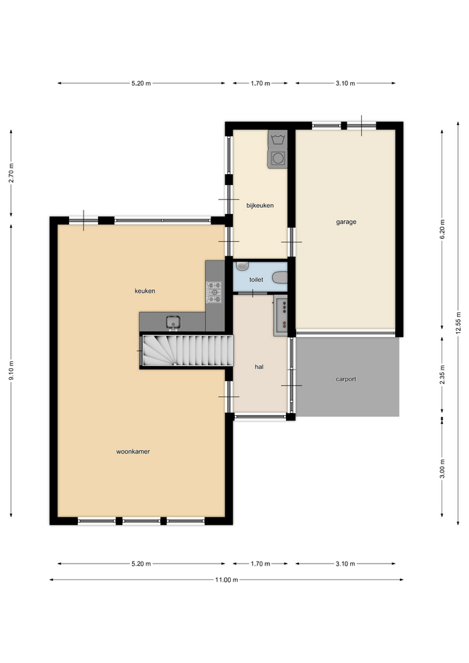
Indeling woonhuis: via de overdekte entree bereikt u de ruime hal met garderobe, meterkast, toiletruimte en trapopgang naar de eerste verdieping. Vanuit de hal is de sfeervolle woonkamer te bereiken, die in open verbinding staat met de keuken aan de achterzijde. De keuken in hoekopstelling is voorzien van diverse inbouwapparatuur, zoals; 5-pits kookplaat, afzuigkap, oven en koelkast. Aangrenzend bevindt zich de bijkeuken met aansluitingen voor het witgoed. Vanuit de bijkeuken is de achtertuin en de garage bereikbaar.
Eerste verdieping: de overloop geeft toegang tot 2 ruime slaapkamers en de badkamer voorzien van ligbad, douche, wastafelmeubel en toilet.
Tweede verdieping: een vaste trap geeft toegang tot de ruime overloop voorzien van dakvenster. Via de overloop bereikt u de 3e slaapkamer met dakkapel voor extra ruimte en licht.
Pluspunten:
– energielabel A;
– voorzien van zonnepanelen en WTW-installatie;
– inpandige garage met carport;
– extra slaapkamer mogelijk;
– heerlijke tuin.
Kenmerken
Overdracht
| Status | Verkocht |
| Aanvaarding | In overleg |
Adres
| Straatnaam | De Fazant |
| Huisnummer | 17 |
| Postcode | 5328 GV |
| Woonplaats | Rossum |
| Land | Nederland |
Maten en ligging
| Liggingen | In woonwijk |
| Inhoud | 440 m3 |
| Gebruiksoppervlakte woonfunctie | 121 m2 |
| Gebruiksoppervlakte overige functies | 20 m2 |
| Perceel oppervlakte | 295 m2 |
Overig
| Bouwvorm | Bestaande bouw |
Bestemming
| Huidig gebruik | Woonruimte |
| Huidige bestemming | Woonruimte |
| Permanente bewoning | Ja |
| Recreatiewoning | Nee |
Bouwjaar
| Jaar omschrijving | 2003 |
| In aanbouw | Nee |
Onderhoud
| Binnen | Goed |
| Buiten | Goed |
Diversen
| Isolatievormen | Dakisolatie, Muurisolatie, Dubbelglas, HR glas |
| Dak | Pannen |
Installatie
| Soorten verwarming | CV ketel, Warmte terugwininstallatie |
| Soorten warm water | CV ketel |
Tuin
| Tuintypen | Achtertuin, Voortuin |
| Kwaliteit | Verzorgd |
Hoofdtuin
| Type | Achtertuin |
| Achterom | Ja |
Garage
| Soorten | Inpandig, Garage met carport |
| Voorzieningen | Elektra |
| Capaciteit | 1 |
Woonhuis
| Soort woning | Eengezinswoning |
Verdiepingen
| Aantal kamers | 4 |
| Aantal slaapkamers | 3 |
Downloads
Ligging
Voorzieningen
School
0.3 km
Supermarkt
0.4 km
Tankstation
0.4 km
Bushalte
0.5 km
Bibliotheek
13.1 km
Treinstation
4.6 km
Deze afstanden zijn berekend in vogelvlucht. De werkelijke routes en afstanden kunnen afwijken.
Interesse? Laat het ons weten
Neem contact op
Moolenaar Makelaardij staat bekend om de persoonlijke benadering en duidelijke afspraken die we met onze cliënten maken. We zijn niet snel tevreden en gaan tot het uiterste om optimaal aan uw woonwensen en -mogelijkheden te voldoen.