Gamerschestraat 55
5301 AR Zaltbommel
€ 795.000,- k.k.
95 m2 woonoppervlakte
115 m2 perceel
4 kamers
2009
Beschrijving
Te Koop: Woon-/ winkel pand.
Stijlvol wonen in het hartje centrum van het historisch plaatsje Zaltbommel
Aan één van de gezellige winkelstraten in de oude binnenstad van Zaltbommel ligt dit karakteristieke Rijksmonumentale stadspand met een royale bovenwoning op de eerste en tweede verdieping. Het pand is anno 2009 volledig gerenoveerd en gemoderniseerd, met behoud van authentieke details zoals ramen met roedeverdeling en sierlijke plafondornamenten.
De woning combineert historische charme met modern wooncomfort en beschikt over een woonoppervlakte van circa 95 m² en een balkon op het zuidoosten. Winkels, horeca en voorzieningen bevinden zich op loopafstand.
Indeling:
Begane grond:
Gemeenschappelijke entree met hal en toegang tot het appartement.
Eerste verdieping:
Ruime hal met vaste kast, lichte woonkamer aan de voorzijde en een eetkamer aan de achterzijde met openslaande deuren naar het zonnige balkon. Dichte keuken in L-opstelling, voorzien van diverse inbouwapparatuur waaronder een 4-pits gasfornuis, afzuigkap en koelkast. Verder een separaat toilet en trapopgang naar de tweede verdieping.
Tweede verdieping:
Overloop met separate toiletruimte, ruime slaapkamer aan de voorzijde met dakkapel en vaste kast, en een nette badkamer met douche en wastafel.
De binnenstad van Zaltbommel is uitstekend bereikbaar met het openbaar vervoer; het NS-station ligt op loopafstand en een bushalte bevindt zich voor de deur. Binnen enkele minuten rijdt u op de A2. In de nabije omgeving zijn volop parkeermogelijkheden aanwezig. Daarnaast liggen de rivier de Waal met haar uiterwaarden, het stadspark en een supermarkt op korte afstand.
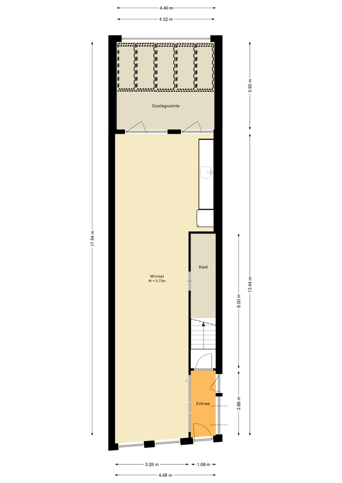
Op de begane grond bevindt zich een winkelruimte van circa 87 m², momenteel in gebruik (blijft verhuurd) als chocoladewinkel. Achter de winkel is extra opslagruimte en tuin aanwezig, waardoor de functionaliteit optimaal is.
De ruimte heeft de bestemming Centrum-1 en ligt in het hart van de binnenstad van Zaltbommel, waardoor het uitermate geschikt is voor detailhandel of andere commerciële activiteiten.
** Mogelijkheid om de winkelruimte ten opzichte van de bovenwoning afzonderlijk van elkaar te kunnen kopen**.
*Let Op winkelruimte blijft verhuurd aan Olala Chocola (https://olalachocola.nl/locaties/zaltbommel)*
Wenst u meer informatie:
e-mail: info@moolenaarmakelaardij.nl
tel: 0418577540
whatsapp: 0418577540
Kenmerken
Overdracht
| VRAAGPRIJS | € 795.000,- k.k. |
| Status | Beschikbaar |
| Aanvaarding | In overleg |
Adres
| Straatnaam | Gamerschestraat |
| Huisnummer | 55 |
| Postcode | 5301 AR |
| Woonplaats | Zaltbommel |
| Land | Nederland |
Maten en ligging
| Liggingen | In centrum |
| Inhoud | 350 m3 |
| Gebruiksoppervlakte woonfunctie | 95 m2 |
| Gebruiksoppervlakte overige functies | 5 m2 |
| Perceel oppervlakte | 115 m2 |
Overig
| Bouwvorm | Bestaande bouw |
Bestemming
| Huidig gebruik | Woonruimte |
| Huidige bestemming | Woonruimte |
| Permanente bewoning | Ja |
| Recreatiewoning | Nee |
Bouwjaar
| Jaar omschrijving | 2009 |
| In aanbouw | Nee |
Onderhoud
| Binnen | Goed |
| Buiten | Goed |
Diversen
| Isolatievormen | Dakisolatie, Muurisolatie |
| Dak | Pannen |
Installatie
| Soorten verwarming | CV ketel |
| Soorten warm water | CV ketel |
Tuin
| Tuintypen | Geen tuin |
Hoofdtuin
| Achterom | Ja |
Garage
| Soorten | Geen garage |
Appartement
| Soort appartement | Bovenwoning |
Verdiepingen
| Aantal kamers | 4 |
| Aantal slaapkamers | 1 |
Downloads
Ligging
Voorzieningen
Bushalte
0 km
Supermarkt
0.3 km
School
0.4 km
Tankstation
0.5 km
Bibliotheek
1.3 km
Treinstation
1.4 km
Deze afstanden zijn berekend in vogelvlucht. De werkelijke routes en afstanden kunnen afwijken.
Interesse? Laat het ons weten
Neem contact op
Moolenaar Makelaardij staat bekend om de persoonlijke benadering en duidelijke afspraken die we met onze cliënten maken. We zijn niet snel tevreden en gaan tot het uiterste om optimaal aan uw woonwensen en -mogelijkheden te voldoen.