Oenselsestraat 7
5301 EN Zaltbommel
Verkocht
153 m2 woonoppervlakte
270 m2 perceel
4 kamers
Energielabel
DBeschrijving
Stap binnen in deze charmante stadswoning en laat je verrassen door de combinatie van sfeer, ruimte en karakter. Gebouwd aan het eind van de 17e eeuw en door de jaren heen met liefde gemoderniseerd, biedt dit huis alles wat je zoekt.
Authentieke details zoals de glas-in-loodramen geven het huis een warme, unieke uitstraling. De uitbouw aan de achterzijde vormt een prachtige tuinkamer: een lichte, uitnodigende ruimte waar je het hele jaar door van het groen in je achtertuin geniet. En wát voor tuin! Diep, beschut en vol privacy — een zeldzaamheid midden in de stad. Of je nu houdt van tuinieren, buiten eten of gewoon in alle rust een boek wilt lezen, hier vind je je plek.
Boven zijn drie fijne slaapkamers en een ruime badkamer. Op de tweede verdieping vind je nog een extra kamer, ideaal als werkplek, hobbyruimte of rustige retreat. En als kers op de taart: uitzicht op de majestueuze Bommelse toren, elke dag opnieuw een prachtig decor.
De woning is omstreeks 1680 gebouwd, maar in de loop der jaren verbouw, gemoderniseerd en sinds 2000 voorzien van sfeervolle tuinkamer aan de achterzijde. De woonoppervlakte bedraagt ca. 153 m² en de woning heeft een inhoud van ca. 601 m³. Het geheel is gelegen op een perceel van 270 m².
Alles wat Zaltbommel te bieden heeft, ligt hier binnen handbereik. Stap zo het gezellige centrum in, met winkels, theater en horeca om de hoek. Het stadskasteel, het park en de stadswallen zijn vlakbij voor een fijne wandeling of gewoon een momentje rust. Zaltbommel is een gezellig vestingstadje aan de Waal met veel bezienswaardigheden en activiteiten. De gemeente Zaltbommel beschikt over een ruim opleidingsaanbod; zo zijn er naast het basisonderwijs diverse vormen van buitengewoon en voortgezet onderwijs aanwezig. Tevens beschikt Zaltbommel over moderne sportaccommodaties zoals o.a. een overdekt zwembad, verschillende sportzalen, tennis-, padel-, voetbal- en hockeyvelden. Op het gebied van cultuur heeft Zaltbommel veel te bieden, waaronder een cultureel centrum met schouwburgzaal en muziekschool. Zaltbommel heeft een centrale ligging in Nederland, ligt direct aan de A2 en beschikt over een NS Station.
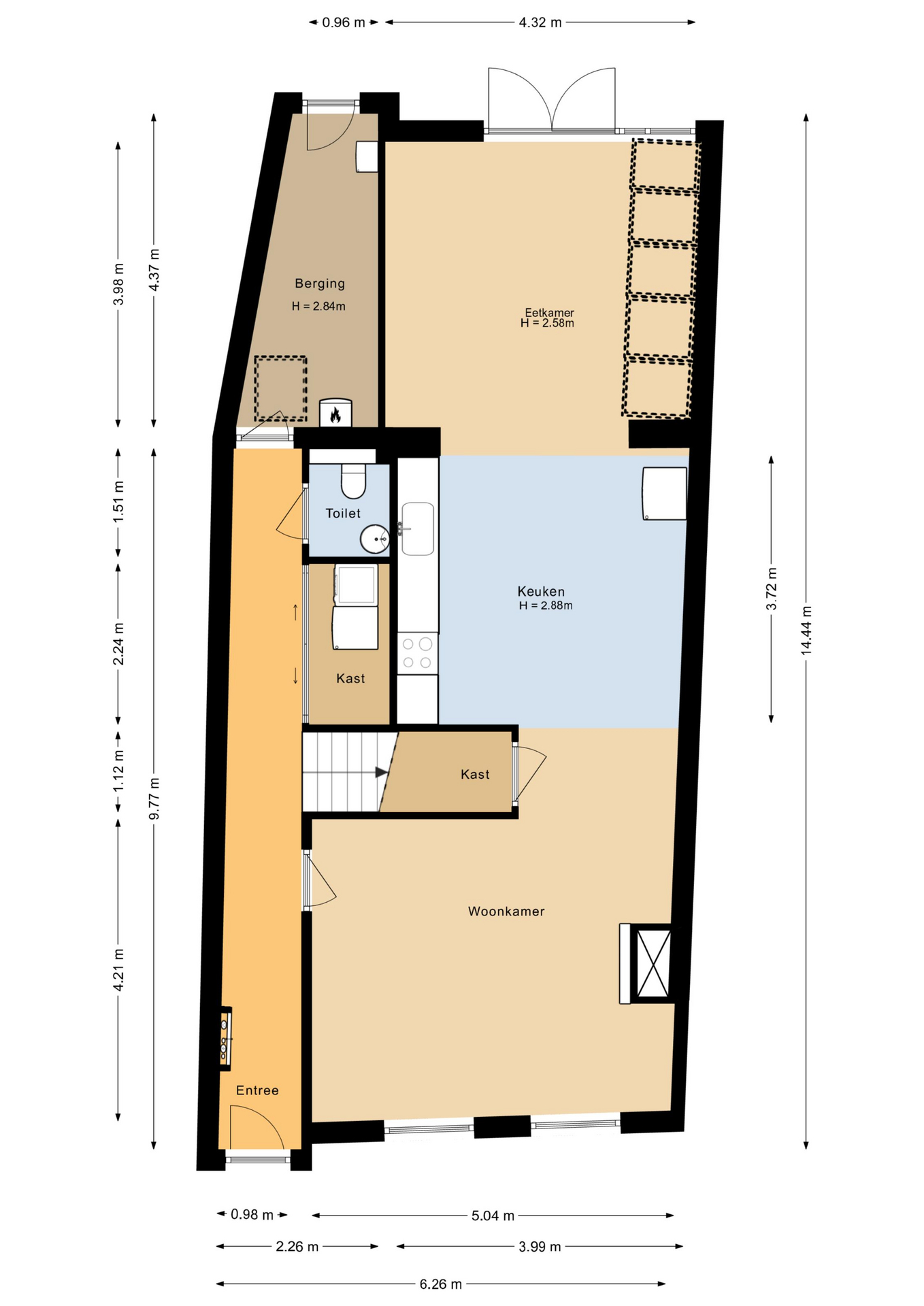
Indeling woning: bij binnenkomst word je verwelkomd in een lange hal waarin functionaliteit en comfort samenkomen. Hier vind je de meterkast, toiletruimte, een kast voor het witgoed en de trap die je naar de eerste verdieping leidt. Vanuit de hal heb je toegang tot zowel de praktische berging als de sfeervolle woonkamer die gelegen is aan de voorzijde van het huis. De woonkamer loopt naadloos over in de open keuken en de tuinkamer, waar het licht royaal binnenvalt via een stijlvolle lichtstraat. De openslaande deuren verwelkomen je naar de achtertuin en maken van binnen en buiten één geheel.
Eerste verdieping: de overloop geeft toegang tot drie slaapkamers en een royale badkamer die is voorzien van een ligbad, dubbele wastafel, wandcloset, ruime inloopdouche en vloerverwarming. Alle slaapkamers beschikken over een eigen vaste kast.
Tweede verdieping: de tweede verdieping biedt een open zolderruimte met een nokhoogte van 2,39 meter. Dakvensters aan beide zijden zorgen voor veel daglicht en een prachtig uitzicht op de toren. Een ideale, lichte plek voor een (thuis)werkplek, studeerkamer, speelruimte of hobbykamer.
Tuin: de op het noordwesten gelegen tuin is een heerlijk beschutte plek, waar je volop kunt genieten van het buitenleven. Dankzij de vrije ligging en een indrukwekkende diepte van bijna 22 meter profiteer je hier van veel zonuren gedurende de dag. Het geheel is sfeervol aangelegd met een groen gazon, weelderige borders met vaste planten, twee terrassen en fruitbomen. Een karakteristieke tuinmuur van kloostermoppen voegt een authentiek accent toe. Vanuit de tuin heb je bovendien een prachtig uitzicht op de Sint Maartenstoren — een uniek en steeds wisselend decor.
Kenmerken
Overdracht
| Status | Verkocht |
| Aanvaarding | In overleg |
Adres
| Straatnaam | Oenselsestraat |
| Huisnummer | 7 |
| Postcode | 5301 EN |
| Woonplaats | Zaltbommel |
| Land | Nederland |
Maten en ligging
| Liggingen | In centrum |
| Inhoud | 601 m3 |
| Gebruiksoppervlakte woonfunctie | 153 m2 |
| Gebruiksoppervlakte overige functies | 7 m2 |
| Perceel oppervlakte | 270 m2 |
Overig
| Bouwvorm | Bestaande bouw |
Bestemming
| Huidig gebruik | Woonruimte |
| Huidige bestemming | Woonruimte |
| Permanente bewoning | Ja |
| Recreatiewoning | Nee |
Bouwjaar
| In aanbouw | Nee |
Onderhoud
| Binnen | Goed |
| Buiten | Goed |
Diversen
| Dak | Pannen |
Installatie
| Soorten warm water | CV ketel |
Tuin
| Kwaliteit | Normaal |
Hoofdtuin
| Type | Achtertuin |
| Achterom | Ja |
Garage
| Soorten | Geen garage |
Woonhuis
| Soort woning | Eengezinswoning |
Verdiepingen
| Aantal kamers | 4 |
| Aantal slaapkamers | 3 |
Downloads
Ligging
Voorzieningen
Bushalte
0.3 km
Tankstation
0.3 km
School
0.7 km
Supermarkt
0.8 km
Treinstation
1 km
Bibliotheek
1.8 km
Deze afstanden zijn berekend in vogelvlucht. De werkelijke routes en afstanden kunnen afwijken.
Interesse? Laat het ons weten
Neem contact op
Moolenaar Makelaardij staat bekend om de persoonlijke benadering en duidelijke afspraken die we met onze cliënten maken. We zijn niet snel tevreden en gaan tot het uiterste om optimaal aan uw woonwensen en -mogelijkheden te voldoen.