Sophiastraat 8
5301 CS Zaltbommel
Verkocht
78 m2 woonoppervlakte
65 m2 perceel
3 kamers
Energielabel
FBeschrijving
Wonen met karakter in hartje Zaltbommel – charmant huis in uniek hofje
In het historische centrum van vestingstad Zaltbommel, verscholen in een sfeervol en rustig hofje waar zelden iets beschikbaar komt, ligt deze charmante tussenwoning aan de Sophiastraat 8. Een plek met karakter, historie en volop mogelijkheden – ideaal voor starters of iedereen die op zoek is naar een authentieke woning op een unieke locatie.
De woning straalt warmte en gezelligheid uit. De sfeervolle living aan de voorzijde is verrassend licht en biedt via openslaande deuren toegang tot een beschutte patio: jouw eigen stadsoase, perfect voor een kop koffie in de ochtendzon of een borrel aan het einde van de dag. De half open keuken aan de achterzijde sluit daar naadloos op aan.
Boven zijn twee prettige slaapkamers en een complete badkamer met douche, ligbad, wastafel en toilet. Via een vlizotrap bereik je de handige vliering – een fijne extra ruimte voor opslag.
Deze woning is toe aan een frisse blik en wat modernisering, maar dat biedt juist dé kans om er helemaal jouw eigen plek van te maken. Geen nieuwbouw zonder ziel, maar een huis met geschiedenis en een verhaal. Voor wie droomt van een eerste koopwoning vol charme, in een rustige straat en toch midden in het centrum, is dit een kans die niet vaak voorbij komt.
De Bouwperiode woning is omstreeks 1906 gebouwd en heeft een woonoppervlakte van ca. 78 m². De inhoud bedraagt ca. 277 m³ en het geheel is gelegen op een perceel van 65 m².
Alles wat Zaltbommel te bieden heeft, ligt hier binnen handbereik. De woning ligt midden in het gezellige centrum met winkels, theater en horeca op steenworpafstand. Het stadskasteel, het park en de stadswallen zijn vlakbij voor een fijne wandeling of gewoon een momentje rust. Zaltbommel is een gezellig vestingstadje aan de Waal met veel bezienswaardigheden en activiteiten. De gemeente Zaltbommel beschikt over een ruim opleidingsaanbod; zo zijn er naast het basisonderwijs diverse vormen van buitengewoon en voortgezet onderwijs aanwezig. Tevens beschikt Zaltbommel over moderne sportaccommodaties zoals o.a. een overdekt zwembad, verschillende sportzalen, tennis-, padel-, voetbal- en hockeyvelden. Op het gebied van cultuur heeft Zaltbommel veel te bieden, waaronder een cultureel centrum met schouwburgzaal en muziekschool. Zaltbommel heeft een centrale ligging in Nederland, ligt direct aan de A2 en beschikt over een NS Station.
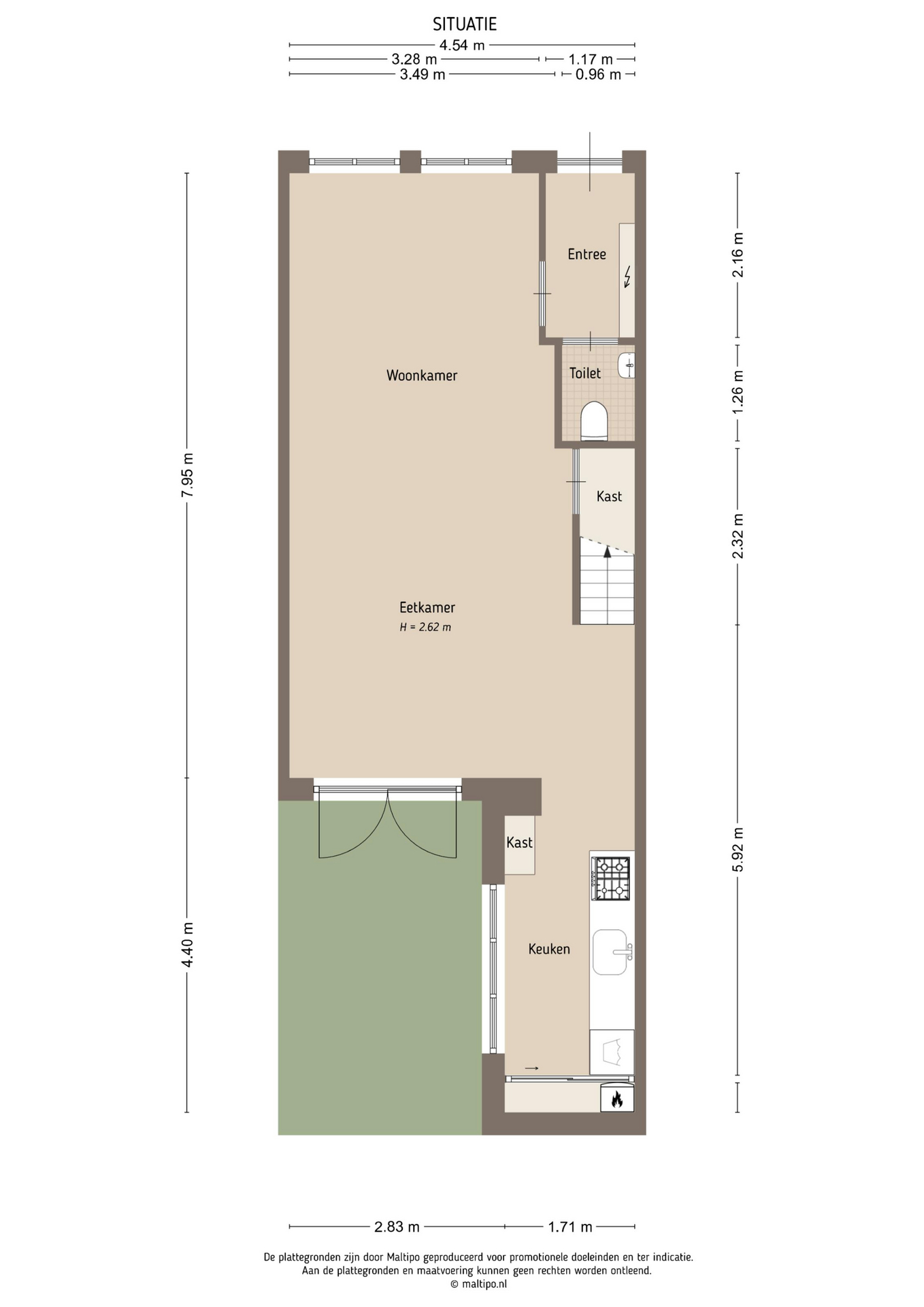
Indeling woning: de entree geeft toegang tot een smalle hal met garderobe, meterkast en toiletruimte. Vanuit de hal stap je de sfeervolle woonkamer binnen met openslaande deuren naar de knusse patio. De keuken is aan de achterzijde gelegen en staat in half open verbinding met de woonkamer. In de woonkamer bevindt zich de trapopgang met handige trapkast.
Eerste verdieping: de overloop leidt naar 2 slaapkamers en de badkamer. Een vlizotrap biedt toegang naar de vliering.
Kenmerken
Overdracht
| Status | Verkocht |
| Aanvaarding | In overleg |
Adres
| Straatnaam | Sophiastraat |
| Huisnummer | 8 |
| Postcode | 5301 CS |
| Woonplaats | Zaltbommel |
| Land | Nederland |
Maten en ligging
| Liggingen | Aan rustige weg, In centrum |
| Inhoud | 277 m3 |
| Gebruiksoppervlakte woonfunctie | 78 m2 |
| Gebruiksoppervlakte overige functies | 3 m2 |
| Perceel oppervlakte | 65 m2 |
Overig
| Bouwvorm | Bestaande bouw |
Bestemming
| Huidig gebruik | Woonruimte |
| Huidige bestemming | Woonruimte |
| Permanente bewoning | Ja |
| Recreatiewoning | Nee |
Bouwjaar
| In aanbouw | Nee |
Onderhoud
| Binnen | Redelijk |
| Buiten | Redelijk |
Diversen
| Dak | Pannen |
Tuin
| Kwaliteit | Normaal |
Hoofdtuin
| Type | Patio atrium |
| Achterom | Ja |
Garage
| Soorten | Geen garage |
Woonhuis
| Soort woning | Eengezinswoning |
Verdiepingen
| Aantal kamers | 3 |
| Aantal slaapkamers | 2 |
Downloads
Ligging
Voorzieningen
School
0.2 km
Bushalte
0.3 km
Tankstation
0.3 km
Supermarkt
0.8 km
Treinstation
1 km
Bibliotheek
1.7 km
Deze afstanden zijn berekend in vogelvlucht. De werkelijke routes en afstanden kunnen afwijken.
Interesse? Laat het ons weten
Neem contact op
Moolenaar Makelaardij staat bekend om de persoonlijke benadering en duidelijke afspraken die we met onze cliënten maken. We zijn niet snel tevreden en gaan tot het uiterste om optimaal aan uw woonwensen en -mogelijkheden te voldoen.